Обратный звонок
Представьтесь, мы вам перезвоним.
Оставить свой отзыв
Расскажите о своём опыте работы с нами.
Задать вопрос
Менеджеры компании с радостью ответят на ваши вопросы, произведут расчет стоимости услуг и подготовят индивидуальное коммерческое предложение.
загрузка карты...
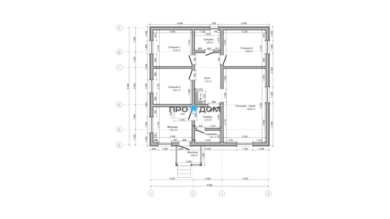
Характеристики
Площадь
84 м²
Размер
9 x 9 м
Этажность
1 этаж
Срок строительства
2 месяца
Цена:
5 000 000 руб.
Готовый для строительства и регистрации
Фундамент
Свайный
Наличие второго света
Нет
Объем пиломатериала для силового каркаса
17.1 м³
Сечение стоек наружных стен каркаса
50х150
Шаг стоек наружных стен каркаса
590 мм в свету
Снеговая/Ветровая нагрузка
III-II
Спальни
3
Санузлы
1
Базовая комплектация в черновой отделке
| Внутренние перегородки | каркас с заполнением звукоизоляцией, без чистовой облицовки, с выводом под прокладку инженерных коммуникаций. |
| Кровля | стропильная система с гидроизоляционной мембраной, контробрешеткой и обрешеткой, с монтажом кровельного покрытия по выбранному типу. |
| Лестничный марш (при наличии второго уровня) | установка черновой деревянной лестницы с ограждением, пригодной для эксплуатации и последующей отделки. |
| Межэтажные и чердачные перекрытия | балки, утепление и черновой настил, формирующие базовый «пирог» пола и перекрытий. |
| Наружные стены | каркас с утеплителем, ветро- и пароизоляцией, с внешней обшивкой техническим материалом (ОСП/доска) под последующую отделку фасада. |
| Несущий контур | монтаж нижней и верхней обвязки, стоек и ригелей каркаса с жестким раскреплением укосами. |
| Окна и двери | сформированные проемы с закладными элементами и подготовкой под монтаж оконных и дверных блоков нужного размера. |
| Подготовка основания | разметка пятен застройки, устройство фундамента по проекту с выравниванием и проверкой диагоналей. |
| Подготовка под отделку | выведение геометрии плоскостей стен, полов и потолков в допусках, необходимых для монтажа финишных покрытий и листовых материалов. |
| Узлы сопряжения | утепление и прокладка уплотнительных материалов в местах примыканий стен, перекрытий и кровли для защиты от продувания. |
Возможные дополнения к проекту:
- Возведение бытовки для проживания или размещения строительной бригады.
- Выполнение рубки углов в технологию «тёплый угол» (по акции без доплаты).
- Замена деревянных оконных блоков на металлопластиковые.
- Замена кровли из ондулина на металлочерепицу.
- Замена наружной вагонки на облицовку имитацией бруса.
- Замена наружной вагонки на отделку блокхаусом.
- Замена наружной вагонки на фасадный сайдинг.
- Замена покрытия из ондулина на мягкую черепицу.
- Замена стандартной половой доски на доску толщиной 36 мм.
- Зашивка цоколя и основания фундамента декоративными панелями.
- Монтаж водосточной системы по периметру кровли.
- Монтаж дополнительного венца в конструкции дома.
- Наружная покраска дома по выбранной цветовой гамме.
- Обработка всех деревянных элементов защитным антисептическим составом.
- Предоставление генератора при отсутствии электричества на участке.
- Применение сухого профилированного бруса при строительстве.
- Сборка дома на деревянные нагели вместо стандартного крепежа.
- Строительство отдельного каркасно‑щитового туалета размером 1×1,2 м.
- Увеличение толщины наружных стен до 150 или 200 мм.
Каркасный одноэтажный дом ПО-331 – прекрасный объект для круглогодичного проживания. Снеговая/ветровая нагрузка уровня 1 этаж делает постройку надёжной в любую погоду. Площадь дома составляет 84 м², что позволит разместить всю необходимую мебель и предметы интерьера. Размеры дома 9 x 9 м экономят место на участке, чтобы вы могли освоить свободное пространство по своему вкусу.
Выбирая Одноэтажный дом ПО-331 вы инвестируете в свой комфорт и уверенность в будущем. Проконсультируйтесь с нашим менеджером по телефону прямо сейчас!




