Обратный звонок
Представьтесь, мы вам перезвоним.
Оставить свой отзыв
Расскажите о своём опыте работы с нами.
Задать вопрос
Менеджеры компании с радостью ответят на ваши вопросы, произведут расчет стоимости услуг и подготовят индивидуальное коммерческое предложение.
загрузка карты...
Характеристики
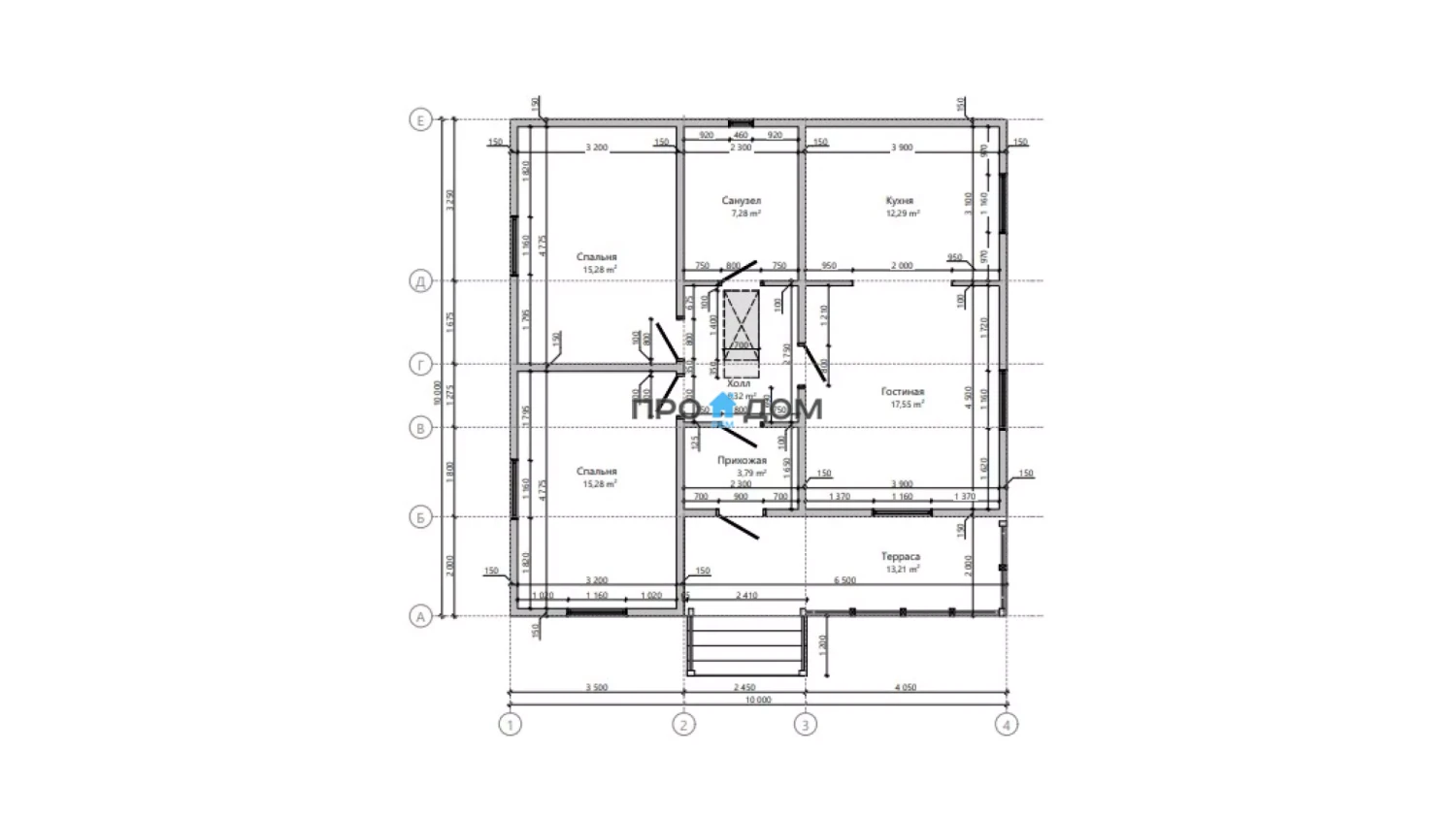
Площадь
100 м²
Размер
10.00 x 10.00 м
Этажность
1 этаж
Срок строительства
2 месяца
Цена:
6 100 000 руб.
Готовый для строительства и регистрации
Фундамент
Свайный
Наличие второго света
Нет
Объем пиломатериала для силового каркаса
22.50 м³
Сечение стоек наружных стен каркаса
50х150
Шаг стоек наружных стен каркаса
590 мм в свету
Снеговая/Ветровая нагрузка
III-II
Спальни
2
Санузлы
1
Базовая комплектация в черновой отделке
| Закладные под инженерные сети | подготовка каналов, отверстий и технологических ниш под электропроводку, водопровод, канализацию и систему отопления, без финишной разводки. |
| Каркас внутренних стен и перегородок | установка стоек и перемычек с закладкой звукоизоляции, подготовленных под облицовку ГКЛ, ГВЛ или другим отделочным материалом. |
| Каркас наружных стен | сборка несущего контура с расчетным сечением стоек, усилением углов и проемов, наружной ветрозащитой и внутренней пароизоляцией без финишной обшивки. |
| Нижняя обвязка и половые лаги | монтаж несущих элементов из антисептированного бруса с креплением к фундаменту и раскреплением, готовых под настил чистового пола. |
| Оконные и дверные проемы | формирование проемов с установкой черновых коробок/доборов (при необходимости) под последующий монтаж окон и дверей. |
| Стропильная система и кровля | сборка стропил, контробрешетки и обрешетки с гидроизоляцией и укладкой кровельного материала (металлочерепица/профнастил или др.) по проекту. |
| Утепление | монтаж теплоизоляционных плит в стены, перекрытия и кровлю по проектной толщине, с аккуратной подрезкой и заполнением стыков. |
| Фундамент | устройство основания по проекту с выверкой геометрии и отметок, подготовленного под дальнейшую гидро- и теплоизоляцию. |
| Черновая подготовка потолков | обшивка каркаса плитными материалами или доской (по проекту) с выводом плоскостей под чистовую отделку. |
| Черновой настил пола | укладка плит ОСП/фанеры или обрезной доски по лагам, с формированием ровного основания под ламинированные, плиточные и другие покрытия. |
Возможные дополнения к проекту:
- Возведение бытовки для проживания или размещения строительной бригады.
- Выполнение рубки углов в технологию «тёплый угол» (по акции без доплаты).
- Замена деревянных оконных блоков на металлопластиковые.
- Замена кровли из ондулина на металлочерепицу.
- Замена наружной вагонки на облицовку имитацией бруса.
- Замена наружной вагонки на отделку блокхаусом.
- Замена наружной вагонки на фасадный сайдинг.
- Замена покрытия из ондулина на мягкую черепицу.
- Замена стандартной половой доски на доску толщиной 36 мм.
- Зашивка цоколя и основания фундамента декоративными панелями.
- Монтаж водосточной системы по периметру кровли.
- Монтаж дополнительного венца в конструкции дома.
- Наружная покраска дома по выбранной цветовой гамме.
- Обработка всех деревянных элементов защитным антисептическим составом.
- Предоставление генератора при отсутствии электричества на участке.
- Применение сухого профилированного бруса при строительстве.
- Сборка дома на деревянные нагели вместо стандартного крепежа.
- Строительство отдельного каркасно‑щитового туалета размером 1×1,2 м.
- Увеличение толщины наружных стен до 150 или 200 мм.
Каркасный одноэтажный дом ПО-738 – прекрасный объект для круглогодичного проживания. Снеговая/ветровая нагрузка уровня 1 этаж делает постройку надёжной в любую погоду. Площадь дома составляет 100 м², что позволит разместить всю необходимую мебель и предметы интерьера. Размеры дома 10.00 x 10.00 м экономят место на участке, чтобы вы могли освоить свободное пространство по своему вкусу.
Выбирая Одноэтажный дом ПО-738 вы инвестируете в свой комфорт и уверенность в будущем. Проконсультируйтесь с нашим менеджером по телефону прямо сейчас!




