Обратный звонок
Представьтесь, мы вам перезвоним.
Оставить свой отзыв
Расскажите о своём опыте работы с нами.
Задать вопрос
Менеджеры компании с радостью ответят на ваши вопросы, произведут расчет стоимости услуг и подготовят индивидуальное коммерческое предложение.
загрузка карты...
Характеристики
Цена:
7 150 000 руб.
Готовый для строительства и регистрации
Фундамент
Свайный
Наличие второго света
Нет
Объем пиломатериала для силового каркаса
25.9 м³
Сечение стоек наружных стен каркаса
50х200
Шаг стоек наружных стен каркаса
590 мм в свету
Снеговая/Ветровая нагрузка
III-I
Спальни
3
Санузлы
2
Базовая комплектация в черновой отделке
| Вентиляция чердачного/подкровельного пространства | организованные продухи и зазоры для проветривания конструкций. |
| Внутренние перегородки | каркасные, с закладкой звукоизоляции и готовностью под последующую отделку. |
| Инженерные вводы | закладные/каналы под последующую разводку инженерных коммуникаций (электрика, водоснабжение, отопление). |
| Кровельный пирог | стропильная система с гидроизоляцией и обрешеткой, с монтажом кровельного материала по проекту. |
| Межэтажные перекрытия | деревянные балки с укладкой чернового настила под чистовой пол. |
| Наружные стены | каркас с утеплителем проектной толщины, ветро- и пароизоляционные пленки без чистовой облицовки. |
| Несущий каркас | стойки из сухого строганого бруса с антисептической обработкой, шаг стоек согласно расчету. |
| Оконные и дверные проемы | подготовка проемов в соответствии с проектом под монтаж окон и дверей. |
| Тип фундамента | свайно-винтовой/железобетонный, с учетом расчетной нагрузки дома (выбор по проекту). |
| Черновые полы | настил по лагам из обрезной доски/ОСП, подготовленный под финишное покрытие. |
Возможные дополнения к проекту:
- Возведение бытовки для проживания или размещения строительной бригады.
- Выполнение рубки углов в технологию «тёплый угол» (по акции без доплаты).
- Замена деревянных оконных блоков на металлопластиковые.
- Замена кровли из ондулина на металлочерепицу.
- Замена наружной вагонки на облицовку имитацией бруса.
- Замена наружной вагонки на отделку блокхаусом.
- Замена наружной вагонки на фасадный сайдинг.
- Замена покрытия из ондулина на мягкую черепицу.
- Замена стандартной половой доски на доску толщиной 36 мм.
- Зашивка цоколя и основания фундамента декоративными панелями.
- Монтаж водосточной системы по периметру кровли.
- Монтаж дополнительного венца в конструкции дома.
- Наружная покраска дома по выбранной цветовой гамме.
- Обработка всех деревянных элементов защитным антисептическим составом.
- Предоставление генератора при отсутствии электричества на участке.
- Применение сухого профилированного бруса при строительстве.
- Сборка дома на деревянные нагели вместо стандартного крепежа.
- Строительство отдельного каркасно‑щитового туалета размером 1×1,2 м.
- Увеличение толщины наружных стен до 150 или 200 мм.
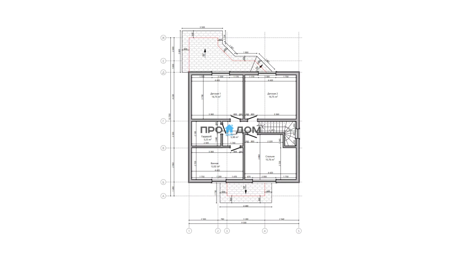
Каркасный дом с мансардой ПМ-476 – прекрасный объект для круглогодичного проживания. Снеговая/ветровая нагрузка уровня делает постройку надёжной в любую погоду. Площадь дома составляет 196 м², что позволит разместить всю необходимую мебель и предметы интерьера. Размеры дома 9.5 x 9.5 м экономят место на участке, чтобы вы могли освоить свободное пространство по своему вкусу.
Выбирая Дом с мансардой ПМ-476 вы инвестируете в свой комфорт и уверенность в будущем. Проконсультируйтесь с нашим менеджером по телефону прямо сейчас!




