Обратный звонок
Представьтесь, мы вам перезвоним.
Оставить свой отзыв
Расскажите о своём опыте работы с нами.
Задать вопрос
Менеджеры компании с радостью ответят на ваши вопросы, произведут расчет стоимости услуг и подготовят индивидуальное коммерческое предложение.
загрузка карты...
Характеристики
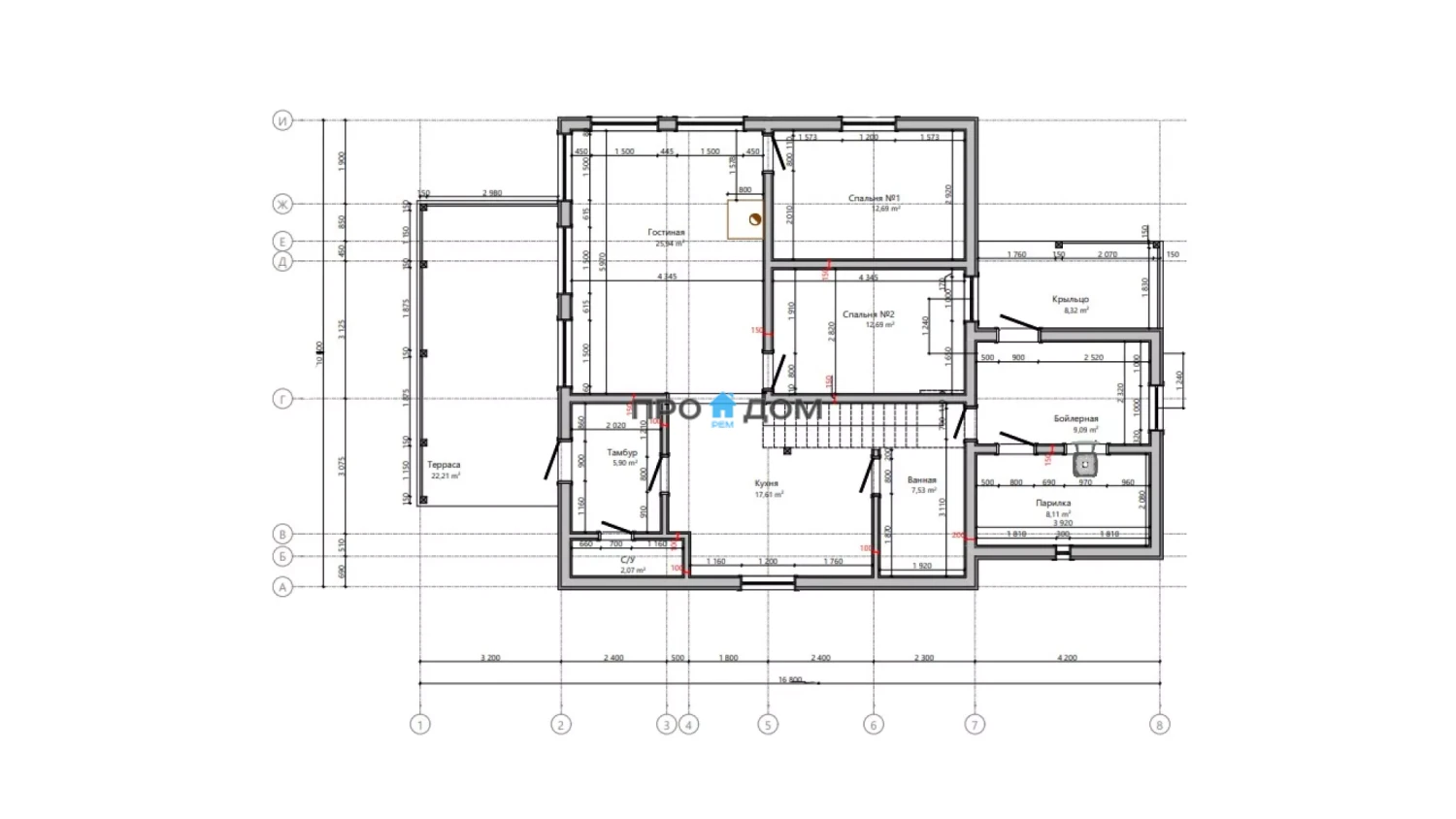
Площадь
260 м²
Размер
16.8 x 10.6 м
Этажность
2 этажа
Срок строительства
2 месяца
Цена:
12 550 000 руб.
Готовый для строительства и регистрации
Фундамент
Плита
Наличие второго света
Нет
Объем пиломатериала для силового каркаса
35.6 м³
Сечение стоек наружных стен каркаса
50х200
Шаг стоек наружных стен каркаса
590 мм в свету
Снеговая/Ветровая нагрузка
IV-II
Спальни
5
Санузлы
2
Базовая комплектация в черновой отделке
| Внутренние перегородки | каркас из доски с заполнением звукоизоляцией, обшивка черновая либо в один слой под последующую отделку. |
| Каркас наружных стен | деревянные стойки с проектным шагом, снаружи закрыты ветроизоляцией, внутри — без чистовой облицовки, готовые под отделку. |
| Нижняя обвязка и лаги пола | брус и балки из хвойных пород с антисептической обработкой и креплением по расчетной схеме. |
| Основание дома | подготовленный фундамент по проекту (свайно-винтовой, столбчатый или ленточный, в зависимости от выбранной комплектации). |
| Подготовка под инженерные системы | технологические отверстия и каналы для скрытой или открытой прокладки электрики, водоснабжения, канализации и отопления. |
| Проемы под окна и двери | формирование усиленных проемов с монтажом черновых перемычек и опор для дальнейшей установки оконных и дверных блоков. |
| Стропильная система | сборка из пиломатериалов с монтажом гидроизоляционной мембраны, контробрешетки и обрешетки под выбранный кровельный материал. |
| Утепление ограждающих конструкций | укладка теплоизоляции в стены, перекрытия и кровельный контур по проектной толщине, с устройством пароизоляции. |
| Чердачное/мансардное пространство | утепление по проекту, паро- и гидроизоляция, подготовка поверхностей под последующую внутреннюю отделку. |
| Черновые полы и перекрытия | настил по лагам/балкам из плиты ОСП или обрезной доски с подготовкой под финишное напольное покрытие. |
Возможные дополнения к проекту:
- Возведение бытовки для проживания или размещения строительной бригады.
- Выполнение рубки углов в технологию «тёплый угол» (по акции без доплаты).
- Замена деревянных оконных блоков на металлопластиковые.
- Замена кровли из ондулина на металлочерепицу.
- Замена наружной вагонки на облицовку имитацией бруса.
- Замена наружной вагонки на отделку блокхаусом.
- Замена наружной вагонки на фасадный сайдинг.
- Замена покрытия из ондулина на мягкую черепицу.
- Замена стандартной половой доски на доску толщиной 36 мм.
- Зашивка цоколя и основания фундамента декоративными панелями.
- Монтаж водосточной системы по периметру кровли.
- Монтаж дополнительного венца в конструкции дома.
- Наружная покраска дома по выбранной цветовой гамме.
- Обработка всех деревянных элементов защитным антисептическим составом.
- Предоставление генератора при отсутствии электричества на участке.
- Применение сухого профилированного бруса при строительстве.
- Сборка дома на деревянные нагели вместо стандартного крепежа.
- Строительство отдельного каркасно‑щитового туалета размером 1×1,2 м.
- Увеличение толщины наружных стен до 150 или 200 мм.
Каркасный двухэтажный дом ПД-232 – прекрасный объект для круглогодичного проживания. Снеговая/ветровая нагрузка уровня 2 этажа делает постройку надёжной в любую погоду. Площадь дома составляет 260 м², что позволит разместить всю необходимую мебель и предметы интерьера. Размеры дома 16.8 x 10.6 м экономят место на участке, чтобы вы могли освоить свободное пространство по своему вкусу.
Выбирая Двухэтажный дом ПД-232 вы инвестируете в свой комфорт и уверенность в будущем. Проконсультируйтесь с нашим менеджером по телефону прямо сейчас!




