Обратный звонок
Представьтесь, мы вам перезвоним.
Оставить свой отзыв
Расскажите о своём опыте работы с нами.
Задать вопрос
Менеджеры компании с радостью ответят на ваши вопросы, произведут расчет стоимости услуг и подготовят индивидуальное коммерческое предложение.
загрузка карты...
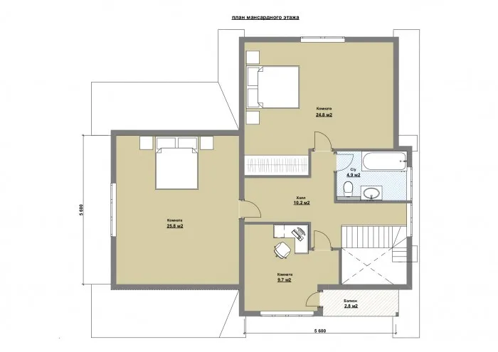
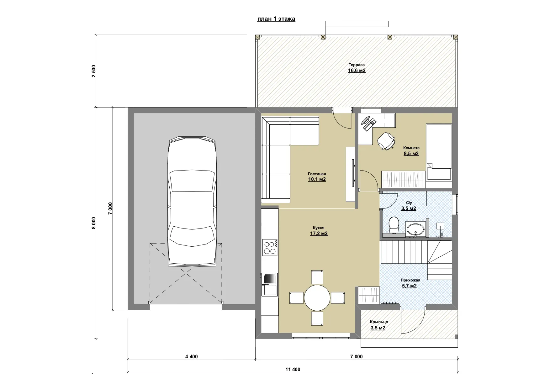
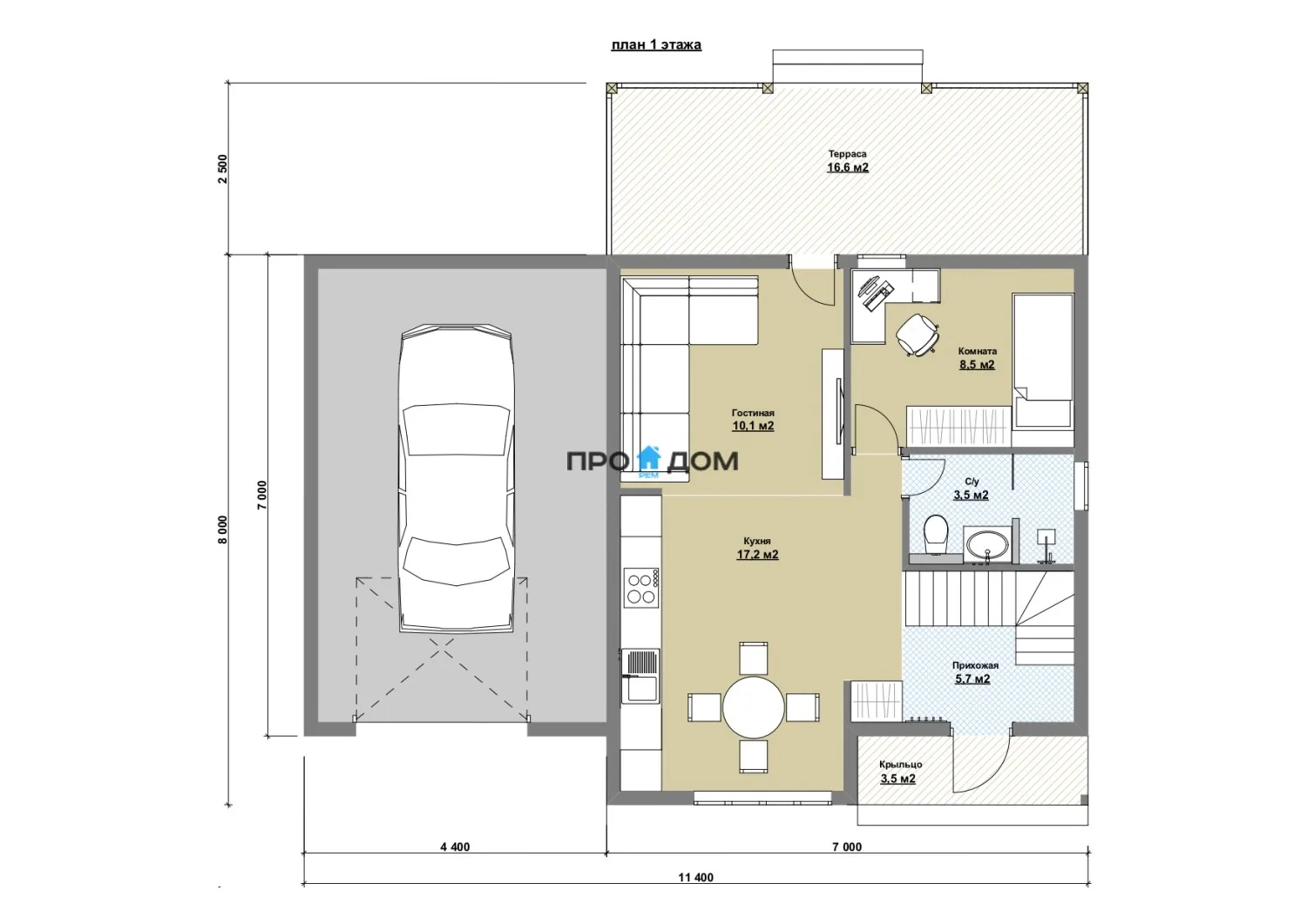
Характеристики
Площадь
165 м2
Размер
11,4х11,5
Этажность
2 этажа
Срок строительства
3 месяца
Цена:
6 200 000 руб.
Готовый для строительства и регистрации
Фундамент
Винтовые сваи диаметром 108 мм и длинной 2500 мм с металлическими оголовками. Глубина закручивания свай – не менее 1500 мм.
Пол первого этажа
Балки перекрытия 35х140 мм. Балки устанавливаются на обвязку сверху, обрабатываются антисептическим составом. Утепление пола первого этажа базальтовый утеплитель 150 мм по ветро-влагозащитной мембране. Чистовой пол, доска пола 28 мм, по пароизоляционной мембране.
Наружные стены
Стойки каркаса выполняются из доски 35х140 мм. Внешняя отделка стен вагонка 12.5 мм, сорт (АВ) по ветро- влагозащитной мембране. Утепление стен базальтовый утеплитель 150 мм.
Перегородки
Перегородки каркасные из доски 35х90 мм. В перегородках предусмотрена звукоизоляция в виде базальтового утеплителя 100 мм.
Внутренняя отделка стен и потолков
Внутренняя отделка стен и потолков вагонка 12,5 мм, сорт (АБ).
Межэтажное перекрытие
Балки перекрытия из доски 35х140 мм. Высота от пола до потолка на первом этаже – 2500 мм без учета чистовой отделки. В качестве звукоизоляции используется экологически безопасный, базальтовый утеплитель материал 150 мм.
Чистовой пол 2-го этаж
Настил пола мансардного этажа доска пола 28 мм. Высота 2-го этажа — 2500 мм без учета чистовой отделки.
Стропильная система
Стропильная система выполняется из п/м сечением 35х140 мм. В качестве утеплителя применяется базальтовый утеплитель 150 мм с применением пароизоляционной мембраны. Под кровлю настилается ветро-влагозащитная гидроизоляционная мембрана. Под кровельное покрытие устанавливается контробрешетка из бруска. Обрешетка кровли п/м 20х90 мм.
Кровля
Кровельный материал металлочерепица. Карнизы подшиваются вагонкой.
Двери
Входная – металлическая. Межкомнатные в экошпоне.
Окна
Двухкамерные ПВХ стеклопакеты, белые.
Терраса и крыльцо
Согласно проекту, комплектуются ступенями.
Лестница на 2-й этаж
строганного материала, с перилами и ограждением лестничного проема.
Базовая комплектация в черновой отделке
| Закладные под инженерные сети | подготовка каналов, отверстий и технологических ниш под электропроводку, водопровод, канализацию и систему отопления, без финишной разводки. |
| Каркас внутренних стен и перегородок | установка стоек и перемычек с закладкой звукоизоляции, подготовленных под облицовку ГКЛ, ГВЛ или другим отделочным материалом. |
| Каркас наружных стен | сборка несущего контура с расчетным сечением стоек, усилением углов и проемов, наружной ветрозащитой и внутренней пароизоляцией без финишной обшивки. |
| Нижняя обвязка и половые лаги | монтаж несущих элементов из антисептированного бруса с креплением к фундаменту и раскреплением, готовых под настил чистового пола. |
| Оконные и дверные проемы | формирование проемов с установкой черновых коробок/доборов (при необходимости) под последующий монтаж окон и дверей. |
| Стропильная система и кровля | сборка стропил, контробрешетки и обрешетки с гидроизоляцией и укладкой кровельного материала (металлочерепица/профнастил или др.) по проекту. |
| Утепление | монтаж теплоизоляционных плит в стены, перекрытия и кровлю по проектной толщине, с аккуратной подрезкой и заполнением стыков. |
| Фундамент | устройство основания по проекту с выверкой геометрии и отметок, подготовленного под дальнейшую гидро- и теплоизоляцию. |
| Черновая подготовка потолков | обшивка каркаса плитными материалами или доской (по проекту) с выводом плоскостей под чистовую отделку. |
| Черновой настил пола | укладка плит ОСП/фанеры или обрезной доски по лагам, с формированием ровного основания под ламинированные, плиточные и другие покрытия. |
Возможные дополнения к проекту:
- Возведение бытовки для проживания или размещения строительной бригады.
- Выполнение рубки углов в технологию «тёплый угол» (по акции без доплаты).
- Замена деревянных оконных блоков на металлопластиковые.
- Замена кровли из ондулина на металлочерепицу.
- Замена наружной вагонки на облицовку имитацией бруса.
- Замена наружной вагонки на отделку блокхаусом.
- Замена наружной вагонки на фасадный сайдинг.
- Замена покрытия из ондулина на мягкую черепицу.
- Замена стандартной половой доски на доску толщиной 36 мм.
- Зашивка цоколя и основания фундамента декоративными панелями.
- Монтаж водосточной системы по периметру кровли.
- Монтаж дополнительного венца в конструкции дома.
- Наружная покраска дома по выбранной цветовой гамме.
- Обработка всех деревянных элементов защитным антисептическим составом.
- Предоставление генератора при отсутствии электричества на участке.
- Применение сухого профилированного бруса при строительстве.
- Сборка дома на деревянные нагели вместо стандартного крепежа.
- Строительство отдельного каркасно‑щитового туалета размером 1×1,2 м.
- Увеличение толщины наружных стен до 150 или 200 мм.
Каркасный дом в скандинавском стиле СК2-5 – прекрасный объект для круглогодичного проживания. Снеговая/ветровая нагрузка уровня 2 этажа делает постройку надёжной в любую погоду. Площадь дома составляет 165 м2, что позволит разместить всю необходимую мебель и предметы интерьера. Размеры дома 11,4х11,5 экономят место на участке, чтобы вы могли освоить свободное пространство по своему вкусу.
Выбирая Дом в скандинавском стиле СК2-5 вы инвестируете в свой комфорт и уверенность в будущем. Проконсультируйтесь с нашим менеджером по телефону прямо сейчас!



