Обратный звонок
Представьтесь, мы вам перезвоним.
Оставить свой отзыв
Расскажите о своём опыте работы с нами.
Задать вопрос
Менеджеры компании с радостью ответят на ваши вопросы, произведут расчет стоимости услуг и подготовят индивидуальное коммерческое предложение.
загрузка карты...
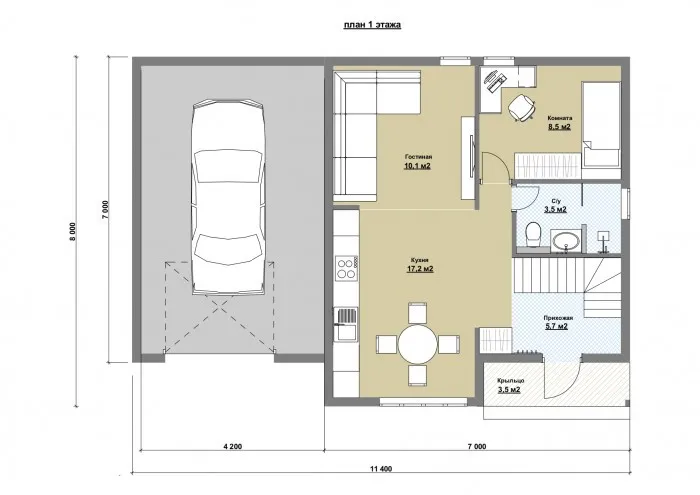
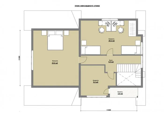
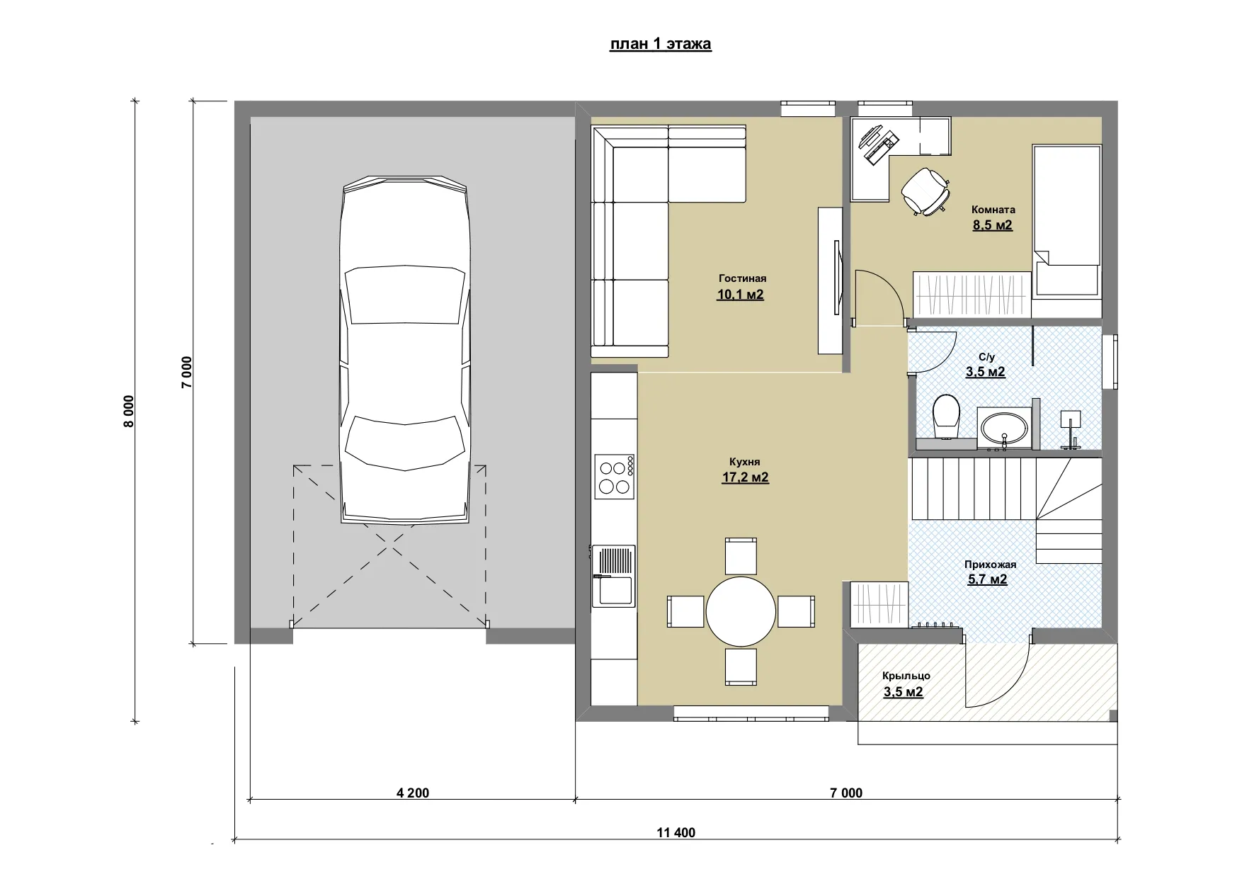
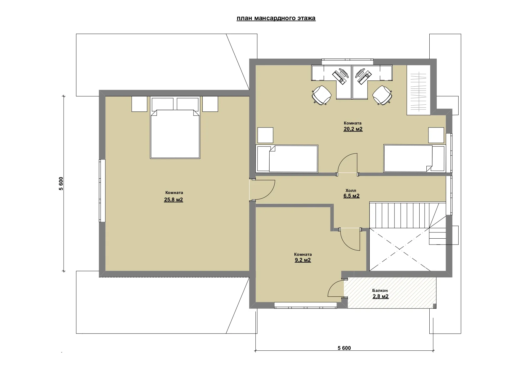
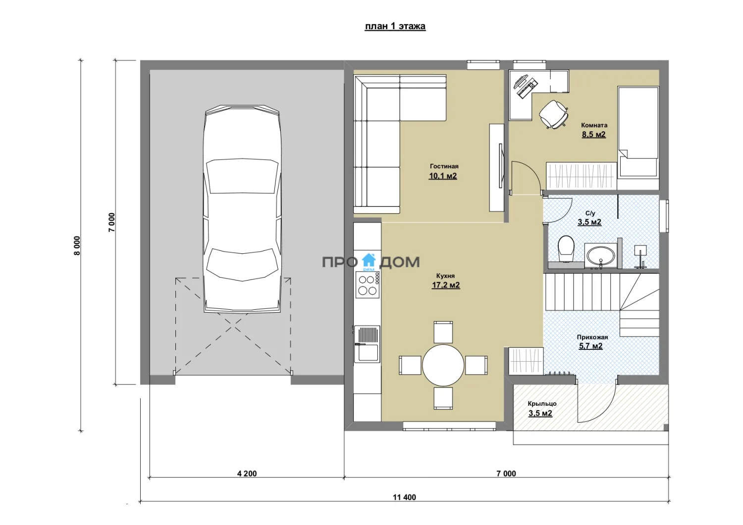
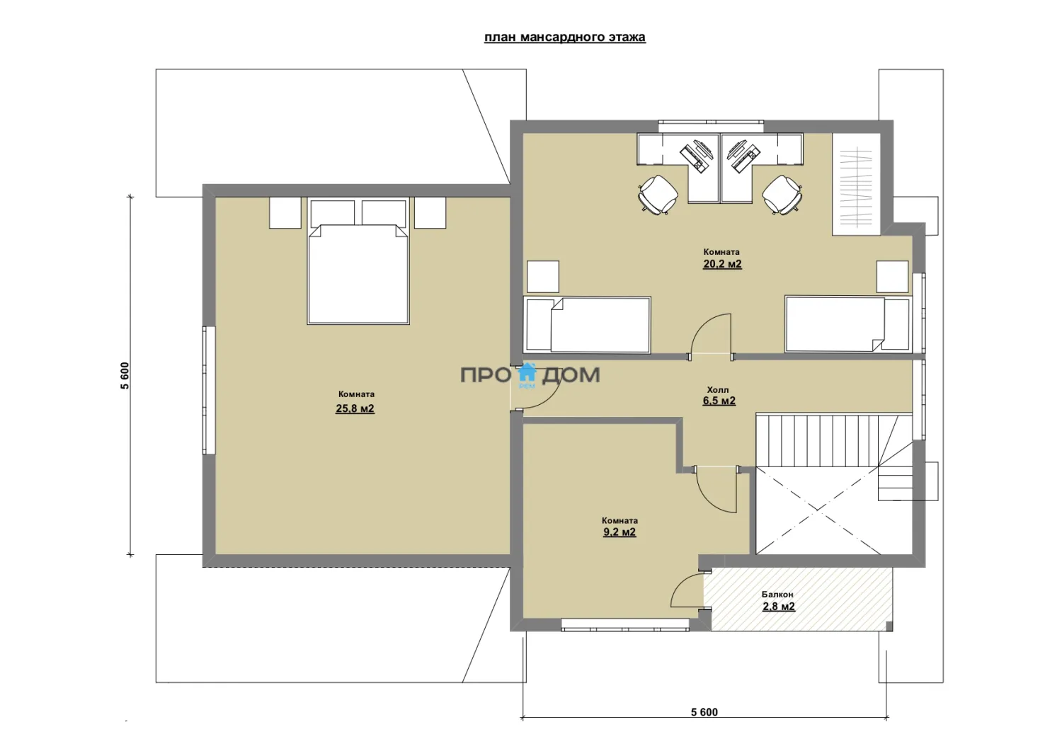
Характеристики
Площадь
134 м2
Размер
11,4х8
Этажность
2 этажа
Срок строительства
2 месяца
Цена:
5 550 000 руб.
Готовый для строительства и регистрации
Фундамент
Винтовые сваи диаметром 108 мм и длинной 2500 мм с металлическими оголовками. Глубина закручивания свай – не менее 1500 мм.
Пол первого этажа
Балки перекрытия 35х140 мм. Балки устанавливаются на обвязку сверху, обрабатываются антисептическим составом. Утепление пола первого этажа базальтовый утеплитель 150 мм по ветро-влагозащитной мембране. Чистовой пол, доска пола 28 мм, по пароизоляционной мембране.
Наружные стены
Стойки каркаса выполняются из доски 35х140 мм. Внешняя отделка стен вагонка 12.5 мм, сорт (АВ) по ветро- влагозащитной мембране. Утепление стен базальтовый утеплитель 150 мм.
Перегородки
Перегородки каркасные из доски 35х90 мм. В перегородках предусмотрена звукоизоляция в виде базальтового утеплителя 100 мм.
Внутренняя отделка стен и потолков
Внутренняя отделка стен и потолков вагонка 12,5 мм, сорт (АБ).
Межэтажное перекрытие
Балки перекрытия из доски 35х140 мм. Высота от пола до потолка на первом этаже – 2500 мм без учета чистовой отделки. В качестве звукоизоляции используется базальтовый утеплитель материал 150 мм.
Чистовой пол 2-го этаж
Настил пола мансардного этажа доска пола 28 мм. Высота 2-го этажа — 2500 мм без учета чистовой отделки.
Стропильная система
Стропильная система выполняется из п/м сечением 35х140 мм. В качестве утеплителя применяется, базальтовый утеплитель 150 мм с применением пароизоляционной мембраны. Под кровлю настилается ветро-влагозащитная гидроизоляционная мембрана. Под кровельное покрытие устанавливается контробрешетка из бруска. Обрешетка кровли п/м 20х90 мм.
Кровля
Кровельный материал металлочерепица. Карнизы подшиваются вагонкой.
Двери
Входная – металлическая. Межкомнатные в экошпоне.
Окна
Двухкамерные ПВХ стеклопакеты, белые.
Терраса и крыльцо
Согласно проекту, комплектуются ступенями.
Лестница на 2-й этаж
Из строганного материала, с перилами и ограждением лестничного проема.
Базовая комплектация в черновой отделке
| Внутренние перегородки | каркас с заполнением звукоизоляцией, без чистовой облицовки, с выводом под прокладку инженерных коммуникаций. |
| Кровля | стропильная система с гидроизоляционной мембраной, контробрешеткой и обрешеткой, с монтажом кровельного покрытия по выбранному типу. |
| Лестничный марш (при наличии второго уровня) | установка черновой деревянной лестницы с ограждением, пригодной для эксплуатации и последующей отделки. |
| Межэтажные и чердачные перекрытия | балки, утепление и черновой настил, формирующие базовый «пирог» пола и перекрытий. |
| Наружные стены | каркас с утеплителем, ветро- и пароизоляцией, с внешней обшивкой техническим материалом (ОСП/доска) под последующую отделку фасада. |
| Несущий контур | монтаж нижней и верхней обвязки, стоек и ригелей каркаса с жестким раскреплением укосами. |
| Окна и двери | сформированные проемы с закладными элементами и подготовкой под монтаж оконных и дверных блоков нужного размера. |
| Подготовка основания | разметка пятен застройки, устройство фундамента по проекту с выравниванием и проверкой диагоналей. |
| Подготовка под отделку | выведение геометрии плоскостей стен, полов и потолков в допусках, необходимых для монтажа финишных покрытий и листовых материалов. |
| Узлы сопряжения | утепление и прокладка уплотнительных материалов в местах примыканий стен, перекрытий и кровли для защиты от продувания. |
Возможные дополнения к проекту:
- Возведение бытовки для проживания или размещения строительной бригады.
- Выполнение рубки углов в технологию «тёплый угол» (по акции без доплаты).
- Замена деревянных оконных блоков на металлопластиковые.
- Замена кровли из ондулина на металлочерепицу.
- Замена наружной вагонки на облицовку имитацией бруса.
- Замена наружной вагонки на отделку блокхаусом.
- Замена наружной вагонки на фасадный сайдинг.
- Замена покрытия из ондулина на мягкую черепицу.
- Замена стандартной половой доски на доску толщиной 36 мм.
- Зашивка цоколя и основания фундамента декоративными панелями.
- Монтаж водосточной системы по периметру кровли.
- Монтаж дополнительного венца в конструкции дома.
- Наружная покраска дома по выбранной цветовой гамме.
- Обработка всех деревянных элементов защитным антисептическим составом.
- Предоставление генератора при отсутствии электричества на участке.
- Применение сухого профилированного бруса при строительстве.
- Сборка дома на деревянные нагели вместо стандартного крепежа.
- Строительство отдельного каркасно‑щитового туалета размером 1×1,2 м.
- Увеличение толщины наружных стен до 150 или 200 мм.
Каркасный дом в скандинавском стиле СК2-4 – прекрасный объект для круглогодичного проживания. Снеговая/ветровая нагрузка уровня 2 этажа делает постройку надёжной в любую погоду. Площадь дома составляет 134 м2, что позволит разместить всю необходимую мебель и предметы интерьера. Размеры дома 11,4х8 экономят место на участке, чтобы вы могли освоить свободное пространство по своему вкусу.
Выбирая Дом в скандинавском стиле СК2-4 вы инвестируете в свой комфорт и уверенность в будущем. Проконсультируйтесь с нашим менеджером по телефону прямо сейчас!



